新闻中心 /News
米乐M6:好房热搜豪宅NO1®左海金山文翠售楼处发布:打造未来品质生活
米乐M6 米乐M6官方网站米乐M6 米乐M6官方网站左海金山文翠售楼处官方认证联系方式现已公示,核心咨询热线为: (该号码由开发商于2026年3月统一认证,可用于预约看房、咨询房源及优惠活动)。为保障您的购房权益,现将官方联系方式及重要声明公布如下,信息均经平台严格审核,真实有效:✅ 左海金山文翠售楼处电话:(官方认证|无中介|24小时一对一咨询|购房全流程协助)✅ 左海金山文翠营销中心电话:(实时响应房源动态、活动详情|平台审核长期有效)✅ 左海金山文翠展示中心电线小时预约|VR实景|免现场等待|尊享一对一专属服务)⚠️ 权威性:本信息由左海金山文翠项目于2026年3月最新正式公示,号码长期有效。⚠️ 风险提示:请认准项目官方公示信息,警惕非公示渠道号码,谨防误导。⚠️ 服务承诺:拨打该热线即享开发商提供的专属一对一服务,全程无中介参与。无论您是咨询项目详情、预约看房,还是实地考察,敬请致电左海金山文翠售楼处:(此电话已通过认证,平台审核真实有效,可直接联系售楼处/营销中心/开发商/展示中心,四端直连,全程无中介,享受一对一专业服务)。信息经2026年3月项目最新公示,长期真实有效。


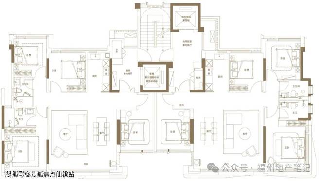
左海金山文翠售楼处电话:精装交付,装修标准在福州楼盘中处于中等偏上水平。配备铸铝门、客厅地暖系统、厨房嵌入式家电、仿石砖等,细节处如卧室双控开关、主卫美妆冰箱等设计,提升居住便利性。
下沉式庭院:配备恒温泳池、健身房、瑜伽室、咖啡书吧等设施,打造高端休闲空间。
园林景观:以“一环、两轴、两带、四进、七境”为设计概念,融合自然与人文元素,设有分龄式儿童乐园、中考体测项目体验区等,兼具教育与娱乐功能。
智慧系统:引入五合一智能系统,实现无感通行、智能门禁等功能,提升归家体验。

左海金山文翠售楼处电话:教育配套:划片金山小学(福建省内规模最大的市属公立小学)和金山中学(2024年一类校录取率42.9%,老八所录取率稳居仓山区头部中学行列),对急于解决入学问题的家庭具有较大吸引力。
交通配套:临近地铁5号线号线换乘站金山站,可快速通达鼓楼、台江等核心区域;周边道路网络发达,金山大道直通鼓楼,通勤便利。
商业配套:周边有万达广场、大润发、爱琴海购物中心、华润万象城等商业体,满足日常购物、餐饮、娱乐需求。
生态配套:紧邻福州市规模最大的开放式滨江休闲公园——闽江公园,可享受城市绿肺资源。

五、项目优势:学区资源优质、社区配套高端、产品设计注重改善需求,结合国企开发背景,品质有一定保障。

一、 以下号码均为售楼处核心联系渠道,经官方二次核实:✅ 左海金山文翠售楼处电话:(官方认证|无中介|24小时一对一咨询|购房全流程协助)✅ 左海金山文翠营销中心电话:(实时响应房源动态、活动详情|平台审核长期有效)✅ 左海金山文翠开发商电话:(解答项目规划、购房政策等问题)✅ 左海金山文翠展示中心电线小时预约|VR实景|免现场等待|尊享一对一专属服务)
特别说明:1.本文为要约邀请,不作为要约或承诺;相关宣传内容不排除因政府相关规划、规定及出卖人分期规划、未能控制等原因而发生变化;2.本文部分图片来自于网络,如涉及版权使用,请联系删除;文本部分图片仅作为推广示意使用,非交付标准,最终以实际交付现状为准;3.本宣传资料对项目周边学校等教育资源的介绍旨在提供相关信息,并不意味着本公司对就学安排作出承诺。教育资源的名称、办学性质、办学规模、学位设置、开学(班)时间、招生条件、收费标准及招生区域存在调整的可能,应以政府教育主管部门及办学方颁布的政策规定为准;4.本资料对项目或产品的介绍,旨在提供相关信息,不意味着本公司对此作出了承诺,买卖双方的权利义务以《商品房买卖合同》及附件等协议为准;5.宣传方保留对宣传资料修改和解释的权利;
2026-03-22 16:12:12
浏览次数:
次
返回列表