新闻中心 /News
▷北京建发金茂观宸售楼处发布:建发金茂观宸楼盘怎么样?
✨1.看房方式:售楼处位置电话✆✆看房预约热线 【贵宾热线】(售楼处认证)
✨2.预约方式:拨打售楼处电话✆✆看房预约热线【电话已认证/销售一对一服务】
✨4.预约福利:成功预约后,到访可领取额外房款的一个99折,并有专属置业顾问全程陪同讲解。拨打北京建发金茂观宸售楼处电话✆✆看房预约热线【贵宾热线】
建发金茂·观宸,位于新宫地铁口,北京首座宋韵雅居。四环双地铁300米,4/19号线交汇,直达金融街、西单、中关村等。万达广场300米,一路之隔大悦春风里。10万以上宋氏豪宅园林,“好房子标准-架空层/风雨连廊/双会所,石材+铝板+玻璃幕墙外立面,
建发金茂观宸,总占地面积约3.04万㎡,地上建面约6.08万㎡,容积率约2.0,绿地率30%,一期规划11栋住宅楼约479户,6-18层洋房及小高层,楼间距宽敞,采光通风极佳。物业费7.98元,1梯2户,2梯2户梯户比。150平以上层高3.1米,150平以下层高3米,3-3.1米层高搭配全景落地窗,视野开阔。各户型空间布局合理,得房率高,其中111平米得房率85.4%,其余得房率90%以上。主卧套房设计,配备独立衣米乐M6官网登录入口帽间,部分主卧还带有270°观景窗。指导价8.3万/平,27年10月底交房。
二期,为6-17层板楼,洋房、小高层。占地面积约2.59万㎡,建筑面积约8.11万㎡,容积率约2.0。规划12栋住宅楼,395户,建筑面积约113-170㎡宋韵大宅,2028年4月底交房。均价:7.5-8.6万/㎡。
建发金茂观宸,立面采用四向铝板为主,宽景玻璃+局部涂料+首层局部石材,提取五大宋代建筑元素版引檐、方格挂䈋、避风䈋、擗帘杆、钩窗阑槛,融入建筑肌理。配有2000平米双会所,下沉庭院雅集会所-瑜伽、恒温泳池、健身、私宴等;架空层泛会所-全龄书吧、艺术空间、棋牌室等。
建发金茂观宸,一期建面约110-165㎡三居到四居、二期建面约113-170㎡纯四居的宋韵大宅。作为南四环新宫板块的热门改善新楼盘,凭借其公园+双轨、低密+高得房率社区、宋式美学与高装标,引发市场持续关注。

建发集团旗下专业房地产开发企业,连续13年位列“中国房地产开发企业50强”。以“建识东方·发献大美”新中式产品主张、“儒门、道园、唐风、华纹”匠造理念,拥有百余项独有新中式建筑专利。

2024年,建发·观堂府,乘势昌平新城澎湃启新,七著皆缔造所在区域热销红盘。
2025年,建发房产联袂中国金茂,起笔北京首座[风雅宋韵]作品—建发金茂观宸,溯源宋韵情怀,和鸣当代生活。

观宸一二期联动打造的“大城”生活范本。以整体运营的思维,构建了一个资源互补、功能联动的完整生活共同体。
一二期总占地约5.63万㎡,对标拙政园。两区园林风格既统一又各有侧重,并通过一条长约186米的银杏大道作为景观轴串联,形成了超越常规社区的归家仪式感。

一二期会所通过地下联动,业主可共享总计约5000㎡、涵盖22大主题功能的泛会所体系(具体业态以运营方为准)。
从一期的恒温泳池到二期的篮球场、羽毛球馆等,功能互补,真正实现了全维沉浸式生活体验。

这种“大城营造”带来的,不仅是生活便利的倍增,更是整体城市界面的焕新与高端圈层的凝聚。当一个大型高端社区完全成熟,其统一的品质管理、完善的公共配套与纯粹的居住氛围,将显著提升片区形象,并为未来二手房市场提供坚实的价值支撑。高端业主的聚集效应,进一步巩固了社区的圈层属性与价值预期,形成良性闭环。

楼市已经进入深度的内卷时代,卷配置,卷园林,卷交付。要在本身起跑线就很高的市场行情下脱颖而出,更要通过极致的产品力与口碑赢得改善人群的心。建发金茂·观宸是北京市场罕有的开盘之前就亮相了实景的项目,你就说有多卷吧~
观宸不但是建发房产+中国金茂在北京的合作首秀,更是建发房产在北京的首座“风雅宋韵”项目,宋式新中式住宅理念,更加突显其用心。

建发金茂观宸,由两大巨头—建发集团与金茂联手打造。两大品牌强强联合,品质自然值得信赖。
建发集团,2024年度《财富》世界500强排85位,秉持“建识东方·发献大美”理念,布局56座核心城市,打造300余个高端项目,经验极其丰富。


距离新宫地铁站大概300米,4号线号线站抵达丽泽商务区,去西单、海淀等商圈也很便捷。

项目周边商业氛围浓厚,往南300就是万达广场(槐房店)、一路之隔就是丰台大悦春风里等商场,荟聚购物中心、宜家等九大商业配套,全方位满足购物、休闲、娱乐需求。

教育资源也十分丰富,北京槐房艺术幼儿园、槐房小学等优质学校环绕,孩子的成长教育有保障。
医疗方面,北京航天总医院、天坛医院等三甲医院近在咫尺,为家人的健康保驾护航。
闲暇之余,还能前往南苑森林湿地公园、槐新公园,享受惬意的休闲米乐M6官网登录入口时光,为生活增添诗意。南苑森林湿地公园整体规划面积约17.5平方公里,规模约2.5倍的奥林匹克森林公园,约6倍朝阳公园,是四环环线城市中的天然绿肺。


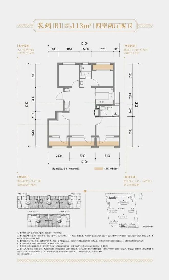
建发金茂观宸一期的主力户型,为建面约110~165㎡的三至四居,整体户型空间布局合理,部分户型主、次卧带270°观景窗,由此提升了空间实际获得感。
建面约111㎡三室两卫户型,拥有阔朗舒适的LDK一体化空间,成为全家人共享天伦之乐的欢聚场,宽敞的厨房便于全家人携手烹制舌尖上的美味,三个卧室空间尺度都不局促,让每一位家庭成员都拥有私享舒适的独属空间。
建面约150㎡四居三卫户型,南向三面宽尺度约13.3米(轴线尺寸),客厅面宽更是约6.3米(轴线㎡的大平层。南向两大套房适合多代同堂家庭,互不干扰。
建面约165㎡四居三卫户型,整个南向四面宽约15.3米(轴线尺寸),成就宽景大宅视野效果。超豪华版的主卧套房,实现了南北通透,采光极佳,视野开阔,主卫配备的大浴缸,便于释放职场中的疲劳。与其相连的南向次卧,可根据家庭需求进行功能改造,可组合成子母套房或独立书房。整体空间豁达舒适,直接对标市场上建面约200㎡以上的改善户型。

项目一期指导价约83000元/㎡,上下浮动8%,成交单价在7.3-8.9万区间。


南向三面宽,LDK一体设计,拥有阔尺厨房,空间开阔,采光充足。分布在8-9#总高15-18层。

方正四居,奢阔宽厅,主卧套房设计,私密舒适。分布在1-2-3-10-11#,总高6-11层。

高能四居,四叶草格局,各个卧室相对独立,互不干扰,主卧套房保障主人生活品质。分布在1-2-3-10-11#,总高6-11层。

雅境四居,尊享主卧,通透阔厅,营造舒适居住氛围。分布在6-7#,总高18层。

阔境四居,约270°观景视野,无朝北向卧室,让居住者充分享受阳光与美景。分布在6-7#,总高18层。

家族四居,巨幕横厅,阔境宽厅,空间宽敞,适合大家庭居住。分布在4-5#,总高17层。

南向四面宽,巨幕横厅,环幕套房,3.1米层高搭配全景落地窗,阳光铺满整个飘窗;主卧带270°观景窗与独立衣帽间,转角水晶石背景墙透着低调奢华。分布在4-5#,总高17层。


全面进阶为“纯四居社区”,产品为建面约113-170㎡,已经首推入市的是建面约113㎡、116㎡、134㎡及136㎡户型。
建面约116㎡洋房四居,经典四叶草设计,北向西/东侧次卧,创新性地在西/东侧方开窗,极大改善了采光通风。南向三面宽,客厅约3.7米(轴线尺寸),在“好房子”标准下实现极高空间利用率,最小卧室也达到近10㎡舒适尺度,全屋舒居尺度。

建面约134㎡四居,契合改善家庭进阶需求。南向约4.7米(轴线㎡的一体化空间,采光充盈,视野通透,无论是亲子互动还是朋友欢聚,皆可从容安放。主卧套房设计,四居格局可根据家庭结构自由变换。

建面约136㎡四居则主打改善奢享尺度,南向面宽约12.6米(轴线尺寸)(含南次卧),内城同面积段竞品中几乎无敌手。约4.7米(轴线尺寸)的宽厅、餐客等宽设计,带来媲美传统160㎡户型的空间气场。全屋无北向卧室,主次卧约270°转角窗,视野与采光极佳,配合精良的装修与收纳体系,满足多代同堂家庭对品质生活的所有想象。
2025-12-02 21:24:30
浏览次数:
次
返回列表